Hus 06

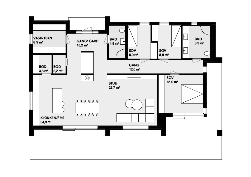
Her får du alt på én flate. Med skråtak kan du nyte ekstra etasjehøyde i nesten alle rom. Huset har flere spennende takformer og hems. Huset egner seg også fint som hytte.
153 m2
3
Her får du alt på én flate. Med skråtak kan du nyte ekstra etasjehøyde i nesten alle rom. Huset har flere spennende takformer og hems. Huset egner seg også fint som hytte.

Bestill huskatalog

Gruppe


This site is protected by reCAPTCHA and the Google Privacy Policy and Terms of Service apply.

Rom for å leve

Kjøpe Nybygg: En Guide til Kjøpsprosessen

Husbankfinansierte Boliger: Fordelene og hvordan få grunnlån

FAQ / Ofte stilte spørsmål