Hus 09

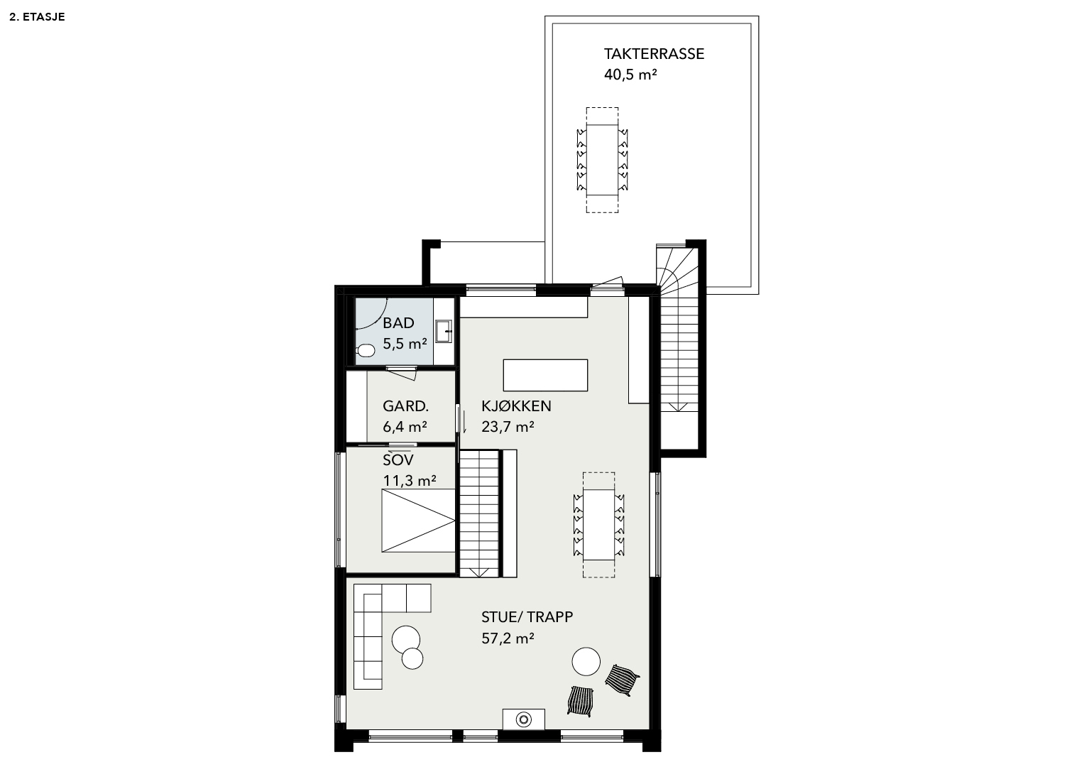
Et moderne hus med treverk som mykner designet. Det lyse huset har en åpen stue– og kjøkkenløsning med definerte soner og ekstra etasjehøyde på hovedplan. Soverommet har en privat sone med garderobe og bad. I tillegg får du både takterrasse og terrasse over en dobbel garasje.
261 m2
4
Et moderne hus med treverk som mykner designet. Det lyse huset har en åpen stue– og kjøkkenløsning med definerte soner og ekstra etasjehøyde på hovedplan. Soverommet har en privat sone med garderobe og bad. I tillegg får du både takterrasse og terrasse over en dobbel garasje.

Bestill huskatalog

Gruppe


This site is protected by reCAPTCHA and the Google Privacy Policy and Terms of Service apply.

Rom for å leve

Kjøpe Nybygg: En Guide til Kjøpsprosessen

Husbankfinansierte Boliger: Fordelene og hvordan få grunnlån

FAQ / Ofte stilte spørsmål